Herzlich willkommen beim
Architekturbüro Michael Gausmann
Leistungen
Wir bieten Ihnen sämtliche Leistungsphasen der Architektur zur Betreuung Ihres Bauvorhabens.
Darüber hinaus sind wir spezialisiert auf Baumaßnahmen im Bestand von Büro- und Geschäftshäusern, z. B. Mieterausbauten oder Mieterumbauten. Als Vermieter profitieren Sie von unserer gesamtheitlichen Arbeitsweise inkl. Betreuung der Mieter bzgl. transparenter Dokumentation von Mehr- und Minderkosten gem. Mietvertrag, Baubeschreibung, Raumbuch o. ä. bis zur Übergabe.
Neben den gestalterischen und funktionalen Aspekten gilt unsere besondere Aufmerksamkeit den wirtschaftlich dauerhaft tragfähigen Maßnahmen und deren notwendigen baulichen Eingriffen.
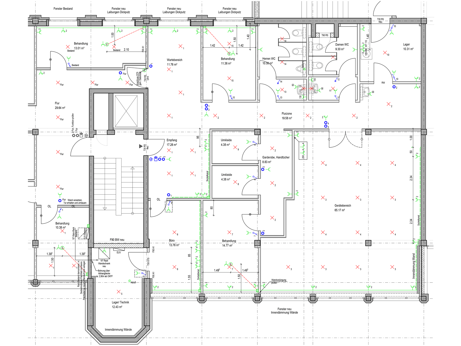
Mietbereichsausbau
Der Umbau und die Modernisierung bestehender Büros, Kanzleien und Praxen aufgrund neuer Anforderungen oder Mietvertragsanpassungen wird von uns regelmäßig geplant und betreut.
Erweiterungsneubau
Bei Bedarf an weiteren Nutzflächen im Bestand oder zur Optimierung der Grundstücksausnutzung kann durch uns eine Erweiterung Ihres bestehenden Gebäudes realisiert werden.
Neubauvorhaben
Für ein Bauvorhaben genau nach Ihren Wünschen entwerfen, beantragen und koordinieren wir Ihr Gebäude bis zur Abnahme und Abrechnung der Firmenleistungen.
Controlling
Eine unabhängige Begleitung von externen Planungsleistungen oder der Bauausführung erbringen wir für Sie mit einem technischen oder kaufmännischen Controlling.
Fachplanung
Im Rahmen der von uns betreuten Bauvorhaben erbringen wir auf Wunsch auch die notwendigen technischen Leistungen der Fachplanung und koordinieren die anderen Beteiligten.
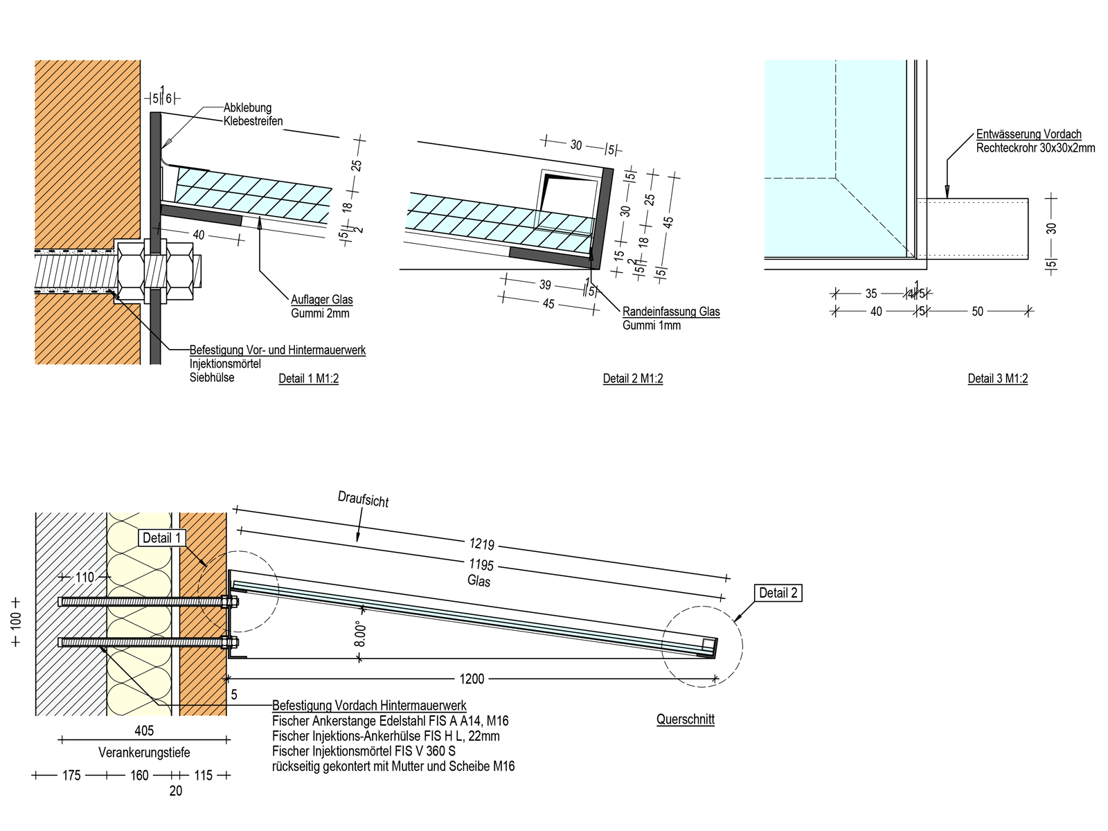
Detailplanung
Vom Städtebau bis ins Detail: Die exakte Planung der Ausführung fördert die genaue Realisierung Ihrer Wünsche und reduziert Ungenauigkeiten in der Ausführung.





